おすすめ物件
中古戸建て 売買
伊敷4丁目 中古戸建て
所在地鹿児島市伊敷4丁目9-27
980万円
おすすめポイント!
- 伊敷小学校まで約800m
- 伊敷支所まで約900m
- 6LDKで大家族にもオススメ
- 閑静な住宅街
- 日当り良好!
物件詳細情報
- 所在地
- 鹿児島市伊敷4丁目9-27
- 交通
- バス 伊敷脇田 停歩15分
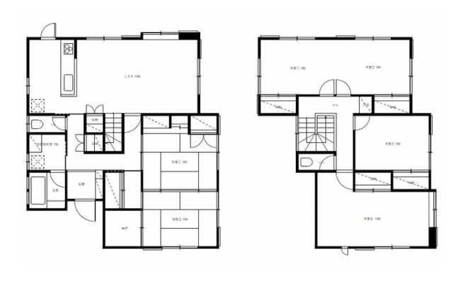
- 間取り
- 6LDK(和6/和6/洋4.5/洋4.5/洋6/洋10/LDK18)
- 建物面積(㎡/坪)
- 144.08㎡/43.58坪
- 土地面積(㎡/坪)
- 154.70㎡/46.79坪
- 築年月
- 1997年8月(平成9年)
- 階数
- 2階建
- 駐車場
- ー
- 学校区
- 伊敷小学校/伊敷台中学校
- 建物構造
- 木造
- 土地権利
- 所有権
- 都市計画
- ー
- 用途地域
- ー
- 接道状況
- 北西4.0m 私道 位置指定あり 南東3.5m 公道
- 建ぺい率
- 60%
- 容積率
- 160%
- 地目
- ー
- 現況
- 空家
- 引渡し可能時期
- 相談
- 取引形態
- 媒介
- 備考
- セットバック要






